- Woonoppervlakte
- Circa 129 m²
- Perceeloppervlakte
- Circa 334 m²
- Bouwjaar
- Gebouwd in 1906
- Aantal kamers
- 5 kamers (3 slaapkamers)
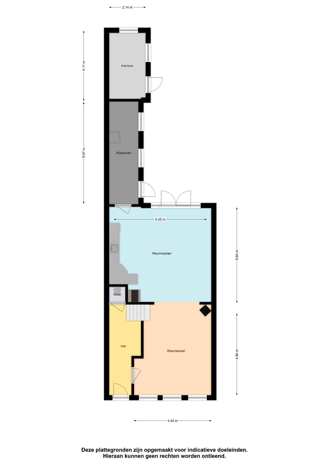
zodra je de woning binnenstapt word je direct getrakteerd op een lekkere sfeer. de woonkamer met een prachtig zicht op je eigen overtuin en gracht, en aan de achterzijde de woonkeuken. groot genoeg voor een flinke eettafel. stel je eens voor, gezellige etentjes met familie of vrienden. kan hier allemaal.
op de verdieping vind je drie slaapkamers, twee wat kleinere aan de voorzijde en een flinke slaapkamer aan de achterzijde. de badkamer heeft een ligbad met douche, toilet en wasmeubel. een vlizotrap geeft je toegang tot de bergzolder.
via de bijkeuken kom je in de achtertuin. aangebouwd is de werkkamer die je een mooi zicht geeft op de tuin. met een diepte van een dikke twintig meter heb je hier altijd wel een heerlijk plekje in de zon. achter in de tuin is de garage/schuur, er is dus ook een achterom. want parkeren kan eenvoudig op het parkeerterrein aan de achterzijde.
tsja, wonen aan de gracht in ijlst is wonen in een heerlijke sfeer en gezellige buurt. dus, lijkt dit je iets, bekijk dan ook even de video en de eigen website van deze woning: galamagracht37.nl
en ben je dan helemaal niet meer te houden bel of mail ons dan voor een afspraak, wel laten deze woonbeleving graag aan je zien. tot ziens!
Overdracht
- Vraagprijs
- € 495.000 k.k.
- Status
- Beschikbaar
- Aanvaarding
- In overleg
Bouw
- Object type
- Eengezinswoning, vrijstaande woning
- Soort bouw
- Bestaande bouw
- Bouwjaar
- 1906
- Soort dak
- Zadeldak bedekt met pannen
Oppervlakte en inhoud
- Woonoppervlakte
- 129 m²
- Perceeloppervlakte
- 334 m²
- Inhoud
- 400 m³
- Externe bergruimte
- 18 m²
Indeling
- Aantal kamers
- 5 kamers (3 slaapkamers)
- Aantal badkamers
- 1 badkamer
- Badkamervoorzieningen
- Ligbad, toilet, douche, wastafelmeubel
- Aantal woonlagen
- 2 woonlagen
Energie
- Energielabel
- D
- Energielabel registratie
- 09-11-2015
- Isolatie
- Dakisolatie, muurisolatie, dubbel glas
- Verwarming
- Cv-ketel
- Warm water
- Cv-ketel
- Cv ketel
- Atag combiketel gas gestookt uit 2020 (eigendom)
Buitenruimte
- Tuin
- Achtertuin, voortuin
- Afmetingen achtertuin
- 168 m² (28 meter diep en 6 meter breed)
- ligging tuin
- Gelegen op het oosten en bereikbaar via achterom
Garage
- Soort garage
- Vrijstaand hout
- Capaciteit
- 1 auto
- Voorzieningen
- Elektra
Parkeergelegenheid
- Soort parkeergelegenheid
- Openbaar parkeren
Energieverbruik in IJlst
Energielabel deze woning
Energielabel D
Publicatie energielabel: 09-11-2015
Stroomverbruik per jaar
(Gemiddelde vrijstaande woning in IJlst)
Gasverbruik per jaar
(Gemiddelde vrijstaande woning in IJlst)
* Cijfers zijn afkomstig van het CBS en bedoeld als indicatie en kunnen verschillen voor deze woning
Indicatie hypotheeklasten
Eigen inleg:
Spaargeld / overwaarde
Rente:
Laagste 10-jaars rente
Laagste 10-jaars rente
2,75% - Centraal Beheer Groen... - NHG
3,05% - Centraal Beheer Groen... - 80%
Laagste 20-jaars rente
3,52% - Syntrus Achmea Groen B... - NHG
3,79% - Syntrus Achmea Groen B... - 80%
Laagste 30-jaars rente
3,64% - Syntrus Achmea Groen B... - NHG
3,88% - Syntrus Achmea Groen B... - 80%
Hypotheek:
Bruto maandlasten: € 0 p/m
Netto maandlasten: € 0 p/m
Hoe berekenen we dit?
Het rentepercentage is gebaseerd op de laagste 10-jaars vaste rente voor één hypotheekdeel. De vermelde rente (3.05% zonder NHG) is gecontroleerd op 03-10-2025. Deze berekening is gebaseerd op een annuïteitenhypotheek die volledig wordt afgelost, waarbij de maandlasten gedurende de gehele looptijd gelijk blijven. De werkelijke rente en netto maandlasten kunnen variëren, afhankelijk van uw persoonlijke situatie en de hypotheekverstrekker. Raadpleeg een financieel adviseur voor een nauwkeurige berekening en advies. Aan deze berekening kunnen geen rechten worden ontleend; het dient enkel als indicatie.
Documentatie
Leefomgeving
Plattegronden PDF
BAG uittreksel
Brochure
Bezoek onze website
Bezichtiging
Bod uitbrengen
Waardebepaling
Zoekopdracht
Alles downloaden
Zonnegrenzen bekijken
Op de kaart
Inwoners in IJlst
Cijfers voor postcodegebied 8651
- Totaal aantal inwoners
- 3010 inwoners
- Mannen
- 50%
- Vrouwen
- 50%
Inwoners in IJlst
Cijfers voor postcodegebied 8651
- tot 15 jaar
- 15%
- 15 tot 25 jaar
- 12%
- 25 tot 35 jaar
- 18%
- 45 tot 65 jaar
- 31%
- 65 en ouder
- 23%
Huishoudens in IJlst
Cijfers voor postcodegebied 8651
- Eenpersoons zonder kinderen
- 30%
- Meerpersoons zonder kinderen
- 35%
- Huishoudens zonder kinderen
- 65%
Huishoudens in IJlst
Cijfers voor postcodegebied 8651
- Huishoudens met één kind
- 7%
- Huishoudens met meerdere kinderen
- 28%
- Huishoudens met kinderen
- 35%
Woningen in IJlst
Cijfers voor postcodegebied 8651
- Woningen voor 1945
- 15%
- Woningen tussen 1945 en 1965
- 6%
- Woningen tussen 1965 en 1975
- 34%
- Woningen tussen 1975 en 1985
- 17%
- Woningen tussen 1985 en 1995
- 10%
Woningen in IJlst
Cijfers voor postcodegebied 8651
- Woningen tussen 1995 en 2005
- 16%
- Woningen tussen 2005 en 2015
- 2%
- Woningen na 2015
- 1%
- Huurwoningen
- 30%
- Koopwoningen
- 70%
Overige in IJlst
Cijfers voor postcodegebied 8651
- Gemiddelde WOZ waarde
- € 221.000,-
- Personen onder de 65 met uitkering
- Niet beschikbaar
Overige in IJlst
Cijfers voor postcodegebied 8651
- Adressen per km²
- 402
- Stedelijkheid (schaal 1 op 5)
- 20%


Kuperus Heeringa Makelaardij
Indien u vragen heeft of u wilt een bezichtiging inplannen, dan kunt u gebruik maken van het formulier hiernaast. Er zal daarna op korte termijn contact met u worden opgenomen.
Contact opnemen
Kuperus Heeringa Makelaardij
Wij zijn Klaasjan Kuperus, Saskia Heeringa en Brecht de Vries. Klaasjan is een gecertificeerd makelaar met een bouwkundige achtergrond, Saskia is een professionele styliste en Brecht is onze assistent-makelaar. Onze passie voor huizen en mensen heeft ons in de makelaardij gebracht! We begrijpen dat de aankoop of verkoop van een woning uniek, bijzonder en emotioneel is. Daarom staan persoonlijke aandacht en betrokkenheid bij ons voorop. We behandelen elke verkoop of aankoop alsof het ons eigen huis is en vinden het belangrijk om een persoonlijke band te hebben met onze klanten. We houden van een grapje op z'n tijd en plezier staat centraal in ons werk.
Onze visie - We maken van jouw huis een unieke beleving.

Nieuwste reviews
-
Croleskwartier 82
Hele vrolijke en kundige makelaar.Die plezier heeft in zijn werk en goed bereikbaar is en anders snel reageert.
-
Eegracht 26
We kennen de makelaar goed omdat hij in de buurt woont. Dat vonden wij een groot pluspunt. De verkoop verliep prima. Ze waren erg behulpzaam...
-
Scholeksterlaan 40
Klaasjan is een fijne makelaar die begrijpt wat je wensen zijn voor een nieuwe woning. Duidelijke communicatie en fijn resultaat!